First Floor, Outdoor Garden and Cellar
Second and Third Floors
Fourth and Fifth Floors
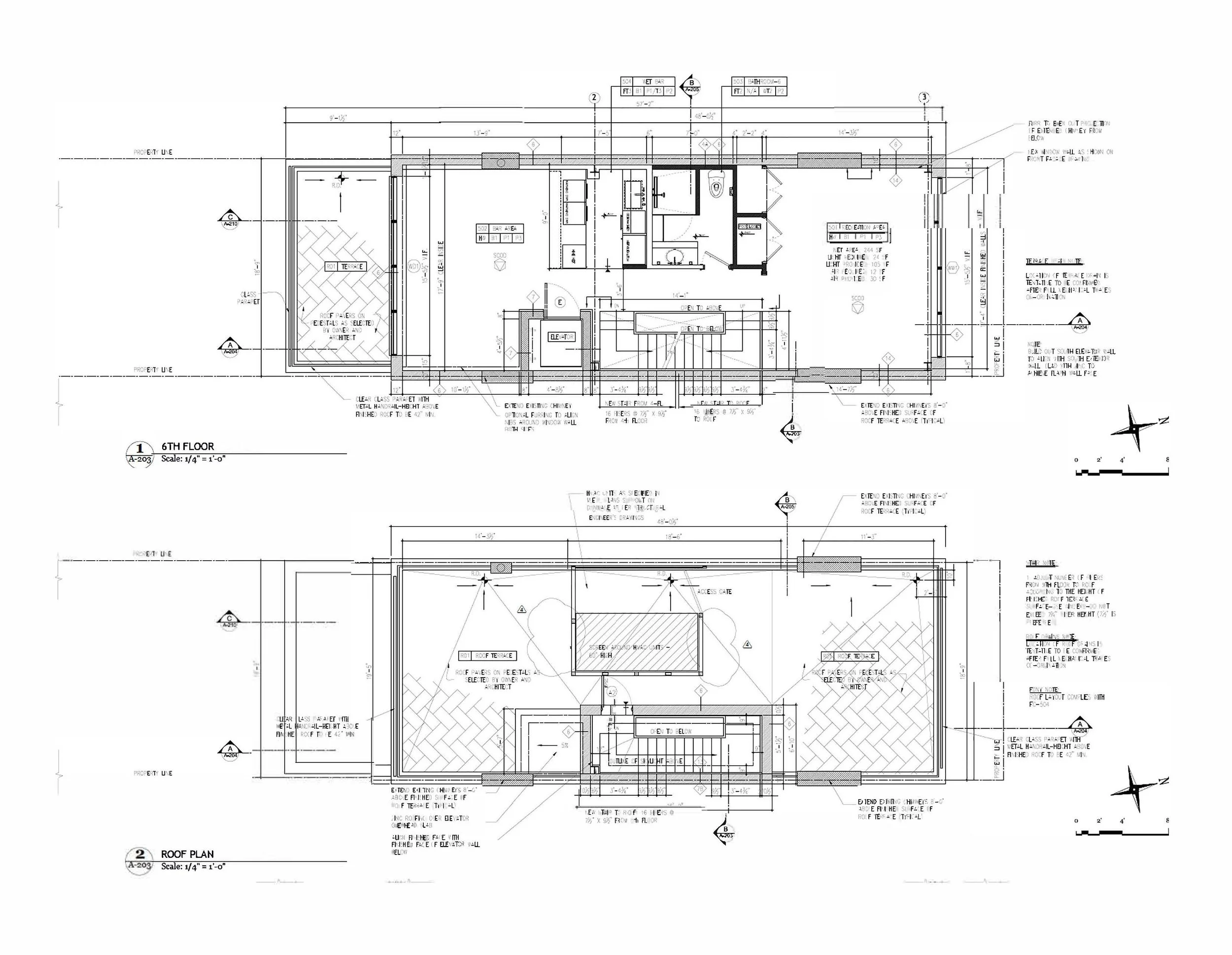
Sixth Floor and Rood Top
First Floor, Outdoor Garden and Cellar
Second and Third Floors
Fourth and Fifth Floors
Sixth Floor and Rood Top